Residenza Viale dei Pioppi
12 appartamenti e 4 villette unifamiliari di nuova costruzione e in pronta consegna a Lugano - Barbengo
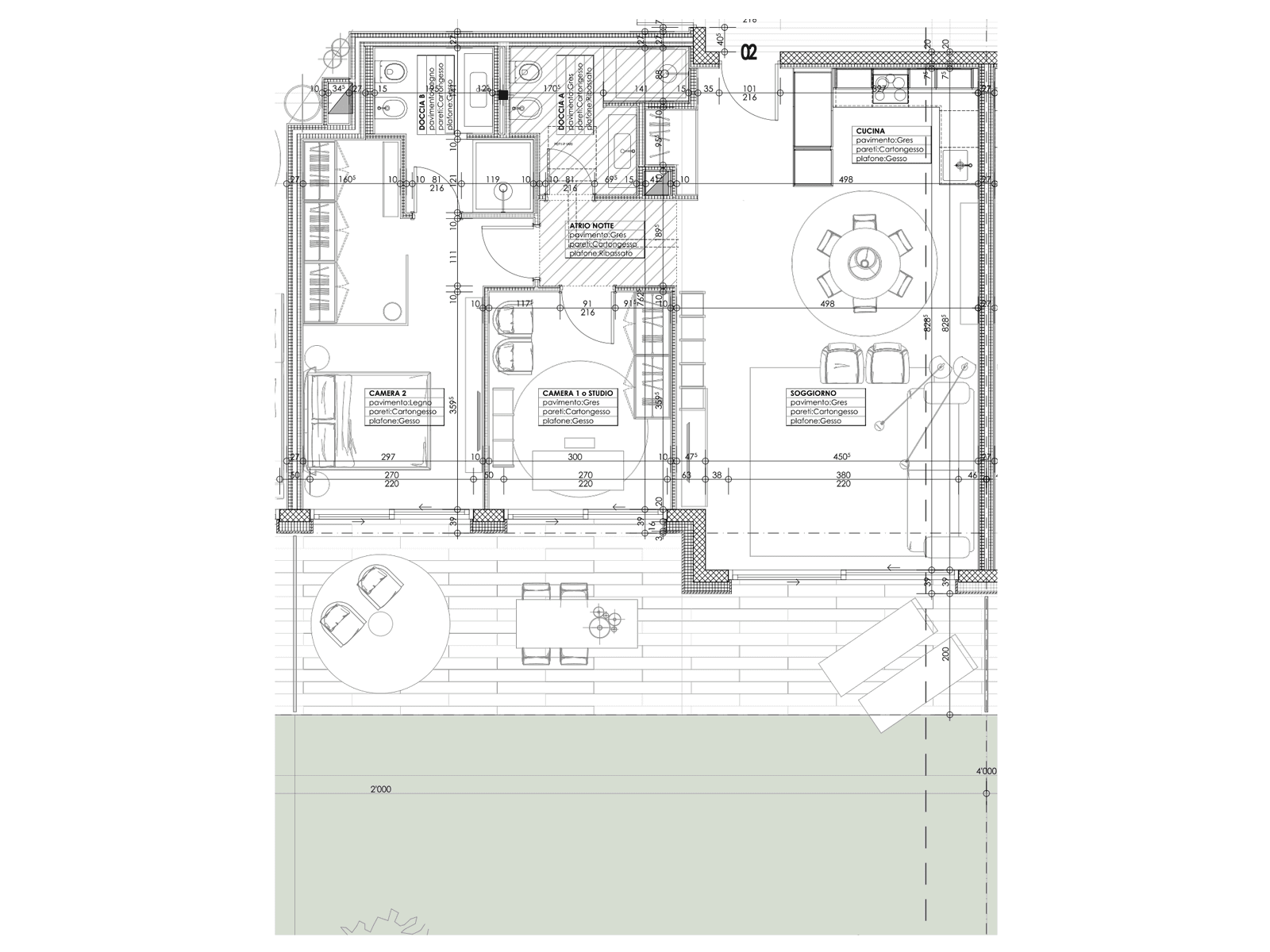
Apartment 02
Price: sold
Total Price: sold
Rooms: 3 ½
Parking spaces: 2
Garage: -
This 3.5 rooms apartment is situated on the ground floor and has a surface area of 95.40 sq/m. The apartment is composed by a nice size entrance, an open space living room and kitchen with an opening directly onto the terrace (29.20 sq/m) and the amazing garden (69.40 sq/m) to enjoy some quality time outdoors, a master bedroom with ensuite bathroom, a second bedroom/studio and a second bathroom.
Together with this property you can buy two outdoor parking lots for 40’000/each.
The interiors' have been built using the finest finishing materials and this makes the property a pure example of high quality apartment.
All the apartments in the building have an air conditioning system.
Together with every apartment in the building comes a big storage which includes a private laundry area too.
All parking spaces and garages are situated on the back part of the development, providing a fantastic quietness and privacy on the front part of the properties, where terraces and gardens are situated.
The main building has huge balconies and terraces with a glass parapet which, together with the astonishing facade of the building built with Classic Travertino, makes the whole construction very pleasant to those who look at it.
Selling surface: 120.76
Terraces: 29.20
Garden: 71.70
Lugano Barbengo
A family-friendly area a few minutes away from the Lugano city center
A common area surrounded by trees is available for the residents to enjoy their freetime outdoors. All parking spaces and garages are situated on the back part of the development, providing a fantastic quietness and privacy on the front part of the properties, where terraces and gardens are situated.
The new development location is definitely strategic. The Lugano city center is only few minutes away, same a the main motorway junction which allow the residents to travel quicly to the north of Switzerland or to the close Italian border. Kinder-garten, primary and secondary school are on a walking distance from the new development, together with the sporting camp and most of the biggest shopping centres are situated in this area too.
The area is massively covered by the public transports and provides to its residents the incredible opportunity to enjoy the surrounding lake and mountains. In a few minutes it's possible to reach the public beach in Figino Casoro and start trekking trails into the wood and in the mountains.

Apartment 02: Floorplan
Available related units
Other units available at Residenza Viale dei Pioppi

Request Information
Get in touch today and ask for more details regarding the new development Residenza Viale dei Pioppi or book your viewing.