Residenza Viale dei Pioppi
12 appartamenti e 4 villette unifamiliari di nuova costruzione e in pronta consegna a Lugano - Barbengo
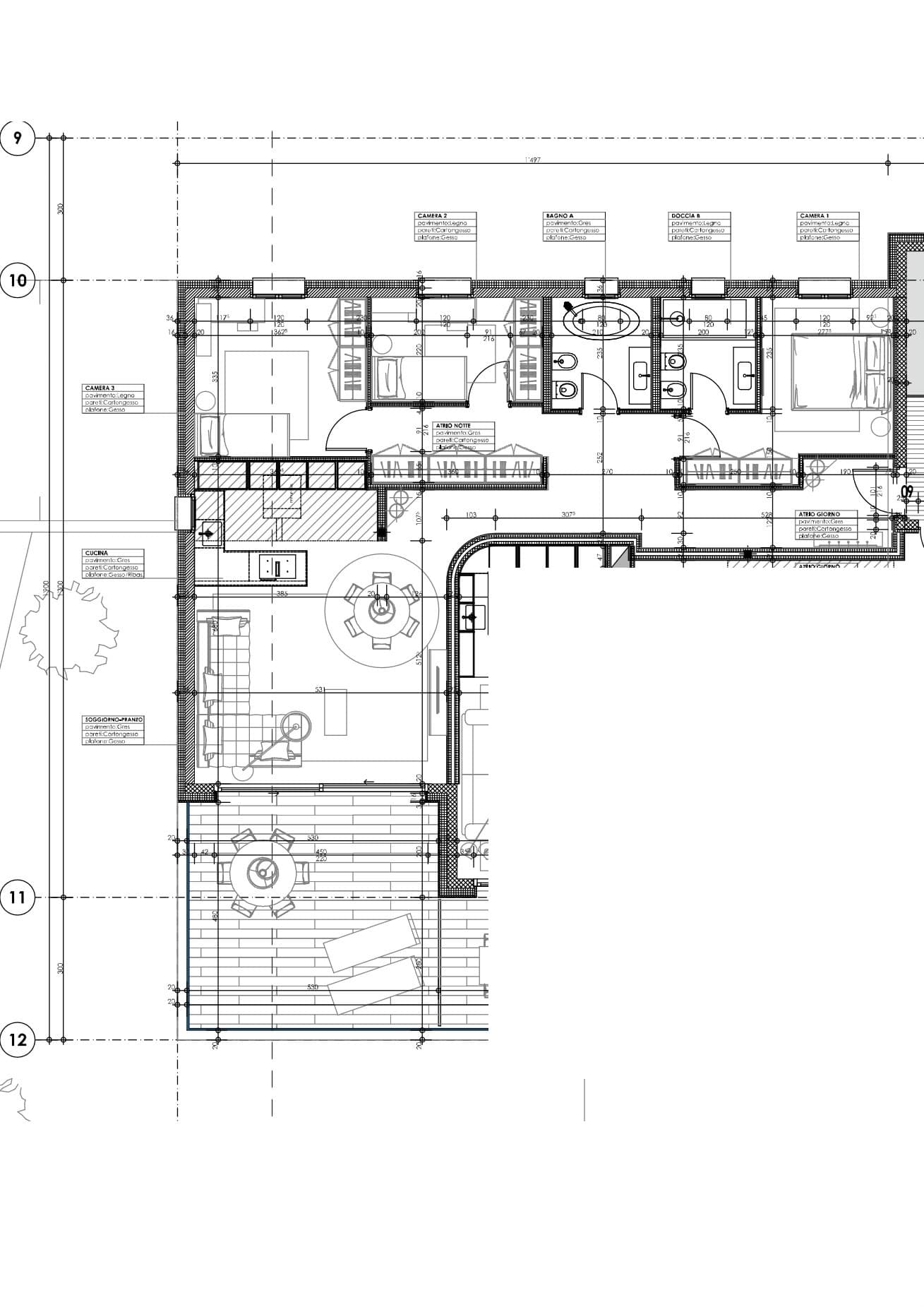
Apartment 09
Price: sold
Total Price: sold
Rooms: 4 ½
Parking spaces: -
Garage: 2
Selling surface: 131.45
Terraces: 27.50
Garden: -
Lugano Barbengo
A family-friendly area a few minutes away from the Lugano city center
A common area surrounded by trees is available for the residents to enjoy their freetime outdoors. All parking spaces and garages are situated on the back part of the development, providing a fantastic quietness and privacy on the front part of the properties, where terraces and gardens are situated.
The new development location is definitely strategic. The Lugano city center is only few minutes away, same a the main motorway junction which allow the residents to travel quicly to the north of Switzerland or to the close Italian border. Kinder-garten, primary and secondary school are on a walking distance from the new development, together with the sporting camp and most of the biggest shopping centres are situated in this area too.
The area is massively covered by the public transports and provides to its residents the incredible opportunity to enjoy the surrounding lake and mountains. In a few minutes it's possible to reach the public beach in Figino Casoro and start trekking trails into the wood and in the mountains.

Apartment 09: Floorplan
Available related units
Other units available at Residenza Viale dei Pioppi

Request Information
Get in touch today and ask for more details regarding the new development Residenza Viale dei Pioppi or book your viewing.